Property Type
House, House
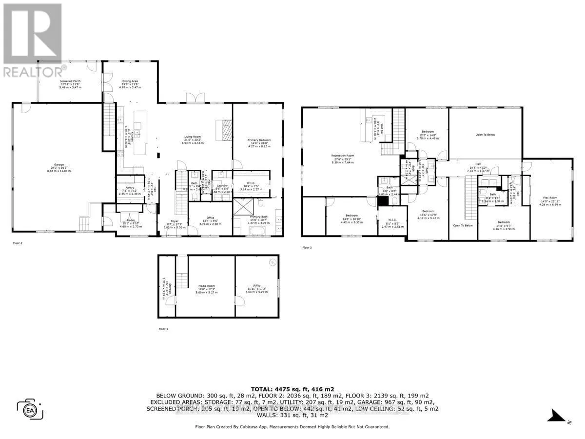
Parking
Garage: Yes, 13 parking
MLS #
X12316773
Size
3500 - 5000 sqft
Basement
Finished, N/A (Finished)
Listed on
-
Lot size
-
Tax
-
Days on Market
-
Year Built
-
Maintenance Fee
-